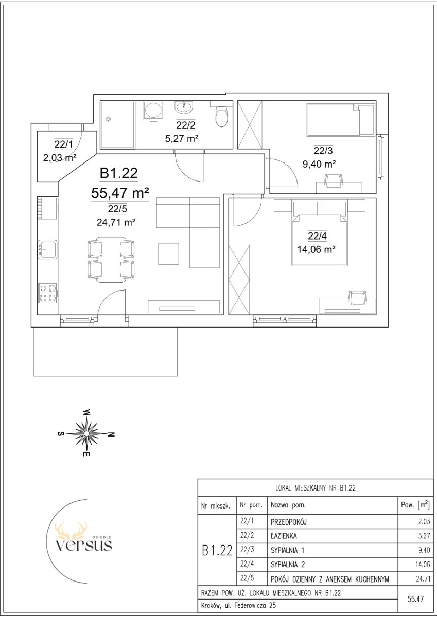
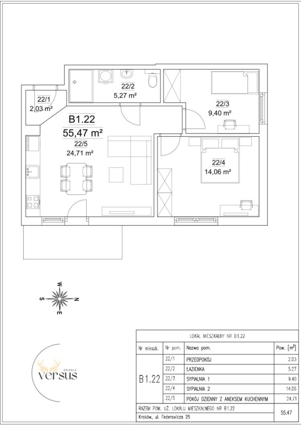
Mieszkanie B1.22
Sprzedane
Logo Osiedle Versus
Mieszkanie
B1.22
Piętro:
1
Liczba pokoi:
3
Powierzchnia:
55.47 m2
Wystawa okna:
Wschód, Północ
Balkon:
5,5 m2
POBIERZ KARTĘ .PDF WIRTUALNY SPACER
Logo Osiedle Versus
jesteś zainteresowany
tym mieszkaniem?